紧固件作为常用零件,金粉们应该都不陌生,今天机械知网从紧固件的分类,螺纹的识别和检验,螺栓、螺钉和螺柱的材料要求、热处理要求和机械性能要求,钢结构螺栓的种类与构造四个方面来介绍,干货满满,值得收藏。
一、紧固件的分类
1、什么是紧固件?
紧固件是将两个或两个以上的零件(或构件)紧固连接成为一个整体时所采用的一类机械零件的总称。市场上也称为标准件。
2、它通常包括以下12类零件:
螺栓、螺柱、螺钉、螺母、自攻螺钉、木螺钉、垫 圈、挡圈、销、铆钉、组合件和连接副、焊钉。
(1)螺栓:由头部和螺杆(带有外螺纹的圆柱体)两部分组成的一类紧固件,需与螺母配合,用于紧固连接两个带有通孔的零件。这种连接形式称螺栓连接。如把螺母从螺栓上旋下,又可以使这两个零件分开,故螺栓连接是属于可拆卸连接。
如下图:

(2)螺柱:没有头部的,仅有两端均外带螺纹的一类紧固件。连接时,它的一端必须旋入带有内螺纹孔的零件中,另一端穿过带有通孔的零件中,然后旋上螺母, 即使这两个零件紧固连接成一整体。这种连接形式称为螺柱连接,也是属于可拆卸连接。主要用于被连接零件之一厚度较大、要求结构紧凑,或因拆卸频繁,不宜采用螺栓连接的场合。
如下图:

(3)螺钉:也是由头部和螺杆两部分构成的一类紧固件,按用途可以分为三类:钢结构螺钉、紧定螺钉和特殊用途螺钉。机器螺钉主要用于一个紧定螺纹孔的零件,与一个带有通孔的零件之间的紧固连接,不需要螺母配合(这种连接形式称为螺钉连接,也属于可拆卸连接;也可以与螺母配合,用于两个带有通孔的零件之间的紧固连接。)紧定螺钉主要用于固定两个零件之间的相对位置。特殊用途螺钉例如有吊环螺钉等供吊装零件用。
如下图:

(4)螺母:带有内螺纹孔,形状一般呈显为扁六角柱形,也有呈扁方柱形或扁圆柱形,配合螺栓、螺柱或钢结构螺钉,用于紧固连接两个零件,使之成为一件整体。
如下图:

(5)自攻螺钉:与螺钉相似,但螺杆上的螺纹为专用的自攻螺钉用螺纹。用于紧固连接两个薄的金属构件,使之成为一件整体 ,构件上需要事先制出小孔,由于这种螺钉具有较高的硬度,可以直接旋入构件的孔中,使构件中形成相应的内螺纹。这种连接形式也是属于可拆卸连接。
如下图:

(6)木螺钉:也是与螺钉相似,但螺杆上的螺纹为专用的木螺钉用螺纹,可以直接旋入木质构件(或零件)中,用于把一个带通孔的金属(或非金属)零件与一个木质构件紧固连接在一起。这种连接也是属于可以拆卸连接。
如下图:

(7)垫圈:形状呈扁圆环形的一类紧固件。置于螺栓、螺钉或螺母的支撑面与连接零件表面之间,起着增大被连接零件接触表面面积,降低单位面积压力和保护被连接零件表面不被损坏的作用;另一类弹性垫圈,还能起着阻止螺母回松的作用。
如下图:

(8)挡圈:供装在钢结构、设备的轴槽或孔槽中,起着阻止轴上或孔上的零件左右移动的作用。
如下图:

(9)销:主要供零件定位用,有的也可供零件连接、固定零件、传递动力或锁定其他紧固件之用。
如下图:

(10)铆钉:由头部和钉杆两部分构成的一类紧固件,用于紧固连接两个带通孔的零件(或构件),使之成为一件整体。这种连接形式称为铆钉连接,简称铆接。属于不可拆卸连接。因为要使连接在一起的两个零件分开,必须破坏零件上的铆钉。
如下图:

(11)组合件和连接副:组合件是指组合供应的一类紧固件,如将某种机器螺钉(或螺栓、自供螺钉)与平垫圈(或弹簧垫圈、锁紧垫圈)组合供应;连接副指将某种专用螺栓、螺母和垫圈组合供应的一类紧固件,如钢结构用高强度大六角头螺栓连接副。
如下图:

(12)焊钉:由于光杆和钉头(或无钉头)构成的异类紧固件,用焊接方法把他固定连接在一个零件(或构件)上面,以便再与其他零件进行连接。
如下图:

二、螺纹的识别与检验
1、螺纹的用途及特点
螺纹的用途非常广泛,从飞机、汽车到我们日常生活中所使用的水管,煤气等都大量地使用场合中,多数螺纹起着紧固连接的作用,其次是用来作力和运动的传递,还有一些专门用途的螺纹,其种类虽多,但其数量都是有限的。
螺纹的使用所以能经久不衰都是由于它具有结构简单、性能可靠、拆卸方便、便于制造等特点,使之成为当今各种机电产品中不可缺少的结构要素。
根据螺纹的用途,各种螺纹件都应具有如下两方面最基本的功能:一是良好的旋合性;二是足够的强度。
2、螺纹的分类
a、根据其结构特点和用途可分为四大类:
普通螺纹(紧固螺纹):牙形为三角形,用于连接或紧固零件。普通螺纹按螺距分为粗牙和细牙螺纹两种,细牙螺纹的连接强度较高。
传动螺纹:牙形有梯形、矩形、锯形及三角形等。
密封螺纹:用于密封连接,主要是管用螺纹、锥螺纹与锥管螺纹。
专门用途螺纹,简称专用螺纹。
b、螺纹按照地区(国家)可以分为:公制螺纹(米制螺纹)英制螺纹、美制螺纹等,我们习惯上将英制螺纹和美制螺纹统称为英制螺纹,它的牙型角有60°、55°等,直径和螺距等相关螺纹参数采用英制尺寸(inch)。而我们国家将牙型角统一为60°,使用毫米(mm)为单位的直径和螺距系列同时将此类螺纹定名为:普通螺纹。
3、普通螺纹牙型

4、螺纹的基本术语
螺纹:在圆柱或圆锥表面上,沿着螺旋线所形成的具有规定牙型的连续突起。
外螺纹:在圆柱或圆锥外表面上所形成的螺纹。
内螺纹:在圆柱或圆锥内表面上所形成的内螺纹。
大径:与外螺纹牙顶或内螺纹的牙底相切的假想圆柱或圆锥的直径。
小径:与外螺纹牙底或内螺纹的牙顶相切的假想圆柱或圆锥的直径。
中经:一个假想圆柱或圆锥的直径,该圆柱或圆锥的母线通过牙型上的沟槽和凸起宽度相等的地方。该假想圆柱或圆锥称为中径圆柱或中径圆锥。

右旋螺纹:顺时针旋转时旋入的螺纹。
左旋螺纹:逆时针旋转时旋入的螺纹。
牙型角:在螺纹牙型上,两相邻牙侧间的夹角。
螺距:相邻两牙在中径线上对应两点间的的轴向距离。
5、螺纹的标记
公制螺纹标记:
一般情况下,一个完整的公制螺纹标记应该包括如下三个方面的内容:
a 表示螺纹特征的螺纹种类代号;
b 螺纹的尺寸:一般应由直径和螺距组成,对于多线螺纹,还应包含导程和线数;
c 螺纹的精度:多数螺纹的精度是由各直径的公差带(包含公差带位置和大小)和旋合长度共同决定的。

英制螺纹标记:

6、螺纹测量
对于一般标准螺纹,都采用螺纹环规或塞规来测量。
因螺纹参数众多,不可能逐个测量螺纹的每一个参数,通常我们采用螺纹量规(螺纹环规、螺纹塞规)对螺纹进行综合判定。这种检验方式属于模拟装配式的验收方法,不但方便、可靠,而且与普通螺纹的精度要求相当,因此已经成为目前实际生产中使用最普遍的验收方式。

7、螺纹测量(中径)
在螺纹连接中,只有中径尺寸决定着螺纹配合的性质,所以如何正确地判断中径是否合格是非常关键。基于中径尺寸应该确保螺纹最基本的使用性能得以实现这个目的,标准中规定了中径合格性的判断原则,即:“实际螺纹的作用中径不能超出最大实体牙型的中径。而实际螺纹任何部位的单一中径不能超出最小实体牙型的中径。”
单一中径的测量目前较方便的方法有两种,一种是用螺纹中径千分尺测量中径,一种是采用三针法测量(我司采用的是三针法测量)。

8、螺纹配合等级:
螺纹配合是旋合螺纹之间松或紧的大小,配合的等级是作用在内外螺纹上偏差和公差的规定组合。
(1)对统一英制螺纹,外螺纹有三种螺纹等级:1A、2A和3A级,内螺纹有三种等级:1B、2B和3B级,全部都是间隙配合。等级数字越高,配合越紧。在英制螺纹中,偏差仅规定1A和2A级,3A级的偏差为零,而且1A和2A级的等级偏差是相等的。

1)1A和1B级,非常松的公差等级,其适用于内外螺纹的允差配合。
2)2A和2B级,是英制系列机械紧固件规定最通用的螺纹公差等级。
3)3A和3B级,旋合形成最紧的配合,适用于公差紧的紧固件,用于安全性的关键设计。
4)对外螺纹来说,1A和2A级有一个配合偏差,3A级没有。1A级公差比2A级公差大50%,比3A级大75%,对内螺纹来说,2B级公差比2A公差大30%。1B级比2B级大50%,比3B级大75%。
等级数目越大公差越小,如图所示:

(2)公制螺纹,外螺纹有常用螺纹等级:4h、6e、6g 和6h ,内螺纹有常用螺纹等级:6G、6 H、7H。(日标螺纹精度等级分为I、II、III三级,通常状况下为II级)在公制螺纹中,H和h的基本偏差为零。G的基本偏差为正值,e、f和g的基本偏差为负值。如图所示:

1)H是内螺纹常用的公差带位置,一般不用作表面镀层,或用极薄的磷化层。G位置基本偏差用于特殊场合,如较厚的镀层,一般很少用。
2)g常用来镀6-9um的薄镀层,如产品图纸要求是6h的螺栓,其镀前螺纹采用6g的公差带。
3)螺纹配合最好组合成 H/g、H/h或G/h,对于螺栓、螺母等精制紧固件螺纹,标准推荐采用6H/6g的配合。
普通螺纹的中等精度等级
螺母:6H 螺栓:6g
具有厚覆盖层的螺纹的中等精度等级
螺母:6G 螺栓:6e
高精度等级
螺母:4H 螺栓:4h , 6h

9、常见的专用螺纹
自攻螺纹:是一种宽牙螺纹,有较大的导程。
GB/T5280 JIS B1007




三、螺栓、螺钉和螺柱的材料、热处理和机械性能
螺栓、螺钉和螺柱的材料、热处理要求


螺栓、螺钉和螺柱的机械和物理性能

四、钢结构螺栓的种类与构造
1、钢结构螺栓连接概述
钢结构螺栓连接(bolt connecting for steel structure),将两个以上的钢结构零部件或构件用螺栓连接成为一体的连接方法。螺栓连接是构件预装和结构安装中最简便的连接方式。

梁柱节点全螺栓连接
螺栓连接在金属结构安装中最早使用。19世纪30年代后期,螺栓连接逐渐被铆钉连接代替,仅在构件组装中作为临时固定措施。20世纪50年代出现了高强度螺栓连接方法。高强度螺栓用中碳钢或中碳合金钢制成,其强度比普通螺栓高2~3倍。高强度螺栓连接具有施工方便、安全可靠等优点,60年代以后在一些冶金工厂的钢结构制造安装中开始应用。

梁拼接的全螺栓连接
2、螺栓的规格
钢结构中常用的螺栓规格有M12、M16、M20、M24、M30,M为螺栓符号,数字为公称直径。
螺栓按照性能等级分3.6、4.6、4.8、5.6、5.8、6.8、8.8、9.8、10.9、12.9共十个等级,其中8.8级以上螺栓材质为低碳合金钢或中碳钢并经过热处理(淬火、回火),通称为高强度螺栓,8.8级以下(不含8.8级,精制普通螺栓也包含8.8级)通称为普通螺栓。下表为螺栓的性能等级及力学性能。

螺栓性能等级标号由两部分数字组成,分别表示螺栓的公称抗拉强度和材质的屈强比。如性能等级分4.6级的螺栓其含义为:第一部分数字(4.6中的“4”)为螺栓材质公称抗拉强度(N/mm2)的1/100,即表示fu≥400N/mm2;第二部分数字(4.6中的“6”)为螺栓材质的屈强比的10倍,即表示fy/fu=0.6;两部分数字的乘积(4×6=“24”)为螺栓材质公称屈服点(或屈服强度)的(N/mm2)的1/10,即表示fy≥240N/mm2。
钢结构普通螺栓按制作精度可分为A、B、C级三个等级。A、B级为精制螺栓,一般用于机械产品,C级为粗制螺栓。除特殊说明外,钢结构普通螺栓一般为普通粗制C级螺栓,性能等级4.6级或4.8级。
螺栓连接的强度设计值采用GB50017-2003《钢结构设计规范》表3.4.1-4 取值。


3、螺栓的分类
螺栓有很多叫法,螺钉、螺栓钉、标准件、紧固件等。
广义上螺栓包括普通螺栓、高强螺栓、地脚锚栓、膨胀螺栓、化学锚栓、螺钉、栓钉等;狭义上的螺栓分为普通螺栓连接和高强度螺栓两种。
(1)普通螺栓连接
普通螺栓按制作精度分粗制螺栓、精制螺栓。
普通螺栓按照形式可分为六角头螺栓、双头螺栓、沉头螺栓等;

上图是沉头螺栓
粗制螺栓
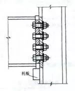
C级螺栓一般为粗制螺栓,用碳素结构钢制成,为使螺栓顺利地穿入螺孔,其孔径应比螺栓公称直径d大1.0~2.0mm,为II类孔。螺栓孔距排列要便于扳手拧紧螺帽。当粗制螺栓用于柱、梁、屋架的构件连接时,应采用加托板的连接构造。此时螺栓处于受拉状态,其剪力由托板承受(如下图)。

粗制螺栓所用材料强度等级低,限制了其在结构连接中的使用范围,但在剪力较小的工作平台次梁、墙皮梁、屋面梁及支撑、铰接支座等的连接中仍得到广泛应用。

上图为普通螺栓
粗制螺栓还普遍用于厂房钢结构的预拼装、铆接构件铆接前的预紧固以及高强度螺栓连接前的组装和安装节点焊接前的临时紧固等。粗制螺栓作为永久固定螺栓使用时,需在找正后将其拧紧并采取防松措施。

上图为柱脚螺栓的双螺母防松措施
精制螺栓
A级、B级螺栓为精制螺栓,孔一般为Ⅰ类孔,其孔径应比螺栓公称直径d大0.3~0.5mm。精制螺栓连接用于一些经常拆装和无法铆接的结构连接。精制螺栓一般用于机械产品,建筑钢结构中极少使用。
(2)高强度螺栓连接
用高强度钢制造的,或者需要施以较大预紧力的螺栓,皆可称为高强度螺栓。高强度螺栓施加预拉力和靠摩擦力传递外力。普通螺栓连接靠栓杆抗剪和孔壁承压来传递剪力,拧紧螺帽时产生预拉力很小,其影响可以忽略不计,而高强螺栓除了其材料强度很高之外,还给螺栓施加很大预拉力,使连接构件间产生挤压力,从而使垂直于螺杆方向有很大摩擦力,而且预拉力、抗滑移系数和钢材种类都直接影响高强螺栓的承载力。

高强螺栓的工作原理
高强螺栓按其受力状况主要分为:摩擦型和承压型两种。
高强螺栓按施工工艺分为:扭剪型高强螺栓和大六角高强螺栓两种。

扭剪型高强螺栓和大六角高强螺栓
摩擦型高强螺栓连接,靠螺栓紧固压力使连接板层贴紧后在钢板接触表面产生的摩擦力来传递外力。对构件表面进行喷砂处理后生成赤锈面,可获得较大的摩擦系数,减少连接螺栓的数量。摩擦型高强度螺栓的孔径应比螺栓公称直径d大1.5~2.0mm。
承压型高强度螺栓连接,是使构件间产生的摩擦力和螺栓中心轴剪切力与构件的承压力同时作用来传递应力的,其孔径应比螺栓公称直径d大1.0~1.5mm。制孔采用数控钻床钻孔和钻模钻孔等方法。
总之,摩擦型高强螺栓和承压型高强螺栓实际上是同一种螺栓,不同之处在于设计是否考虑滑移。设计上,摩擦型高强螺栓摩擦面不能滑动,螺杆不承受剪力,一旦摩擦面滑移,就认为达到设计破坏状态,在技术上比较成熟、可靠;承压型高强螺栓摩擦面可以滑动,螺杆也承受剪力,最终破坏与普通螺栓破坏相同(螺栓剪坏或钢板压坏)。
大六角高强螺栓,由一个高强度螺栓、一个螺母和两个垫圈可组成高强度螺栓连接副。
施工时,先用粗制螺栓将结构临时固定,待结构安装找正后,再从螺栓群中部开始逐个将粗制螺栓换上高强度螺栓并进行初拧,初拧后再顺次进行复拧和终拧。

上图是不同长度的大六角头高强度螺栓连接副
进行大六角头高强度螺栓连接副安装时,螺栓两边应各加一个垫圈。初拧扭矩值为终拧扭矩值的50%,复拧扭矩值等于终拧扭矩值,终拧扭矩值计算公式为:Tc=K*Pc*d。式中Tc为终拧扭矩值,单位N·m;K为扭矩系数;Pc为施工预拉力,单位kN;d为高强度螺栓螺纹直径,单位mm。施拧采用扭矩扳手,每次使用前应进行扭矩校正。
扭剪型高强螺栓,一个高强度螺栓、一个螺母和一个垫圈组成扭剪型高强螺栓连接副。

扭剪型高强螺栓

扭剪型电动扳手

扭剪型高强螺栓安装原理
进行扭剪型高强度螺栓连接副安装时,应仅在螺母一侧加一个垫圈。初拧扭矩值计算公式为:Tc=0.065*Pc*d。式中Tc为初拧扭矩值,单位N·m;Pc为施工预拉力,单位kN;d为高强度螺栓螺纹直径,单位mm。终拧采用专用扳手将尾部梅花头拧断为止。质量检查的重点应放在施工过程的监督检查。
(3)地脚锚栓
地脚锚栓别名地脚螺栓、地脚螺丝、地脚丝等,用于钢结构柱脚与混凝土基础连接的构件。一般采用Q235、Q345圆钢制作。

不同种类的地脚锚栓(直径大于24mm应采用锚板形式)
安装时由钢框固定地脚锚栓组,与绑扎钢筋笼一起安装,然后浇筑混凝土,螺栓头应露出混凝土面一定长度。待混凝土达到一定强度后,安装钢柱脚,最后柱底二次灌浆。

钢框固定地脚锚栓组

地脚锚栓示意图

二次灌浆前钢结构柱脚的图片(为保护锚栓顶不螺纹用橡皮套包装)
(4)化学锚栓
化学锚栓是一种新型的紧固材料,由化学药剂与金属杆体组成的。用于在已建成的混凝土结构上安装其他结构的连接件。可用于各种钢结构、幕墙、大理石干挂施工中的后加埋件安装,也可用于设备安装,公路、桥梁护栏安装,建筑物加固改造等场合。

化学锚栓的螺杆和药剂
化学锚栓是继膨胀锚栓之后出现的一种新型锚栓,是通过特制的化学粘接剂, 螺杆胶结固定于砼基材钻孔中,以实现对固定件锚固的复合件。因为化学锚栓的抗拔承载力较大,可替代埋件锚筋,常用在施工现场忘记安装钢结构预埋件但混凝土已浇筑完成,用后加的化学锚栓埋件来补救。
化学锚栓的施工步骤如下:
1)根据工程设计要求,在基材(如混凝土)中相应位置钻孔,孔径、孔深及螺栓直径应由专业技术人员或现场试验确定。
2)用冲击钻或水钻钻孔。
3)用专用气筒、毛刷或压缩空气机清理钻孔中的灰尘,建议重复进行不少于3次,孔内不应有灰尘与明水。
4)保证螺栓表面洁净、干燥、无油圬。
5)确认玻璃管锚固包无外观破损、药剂凝固等异常现象,将其圆头朝外放入锚固孔并推至孔底。
6)使用电钻及专用安装夹具,将螺杆强力旋转插入直至孔底,不应采用冲击方式。
7)当旋至孔底或螺栓上标志位置时,立刻停止旋转,取下安装夹具,凝胶后至完全固化前避免扰动。超时旋转导致胶液流失,影响锚固力。(旋转时间不应超过30秒,转速不应低于300转/分,不大于750转/分,螺栓推进速度约为2cm/秒,不允许采用冲击方式)
(5)膨胀螺栓
膨胀螺栓的作用与化学锚栓作用相同,用于受力较小的锚固件。

不同规格的膨胀螺栓
混凝土结构有裂缝的部位和容易产生裂缝的部位,不得采用膨胀螺栓。同时,主要承重结构、重要管道以及高速运转、承受冲击荷载和振动较大的设计采用的膨胀螺栓,应按计算的设计抗拉力和设计抗剪力选用大一级的规格型号。
4、螺栓的排列和构造要求
螺栓排列分为并列和错列两种:
并列——简单、整齐、紧凑所用连接板尺寸小,但构件截面削弱大;
错列——排列不紧凑,所用连接板尺寸大,但构件截面削弱小。

受力要求
垂直受力方向:为了防止螺栓应力集中相互影响、截面削弱过多而降低承载力,螺栓的边距和端距不能太小;
顺力作用方向:为了防止板件被拉断或剪坏,端距不能太小;
对于受压构件:为防止连接板件发生鼓曲,中距不能太大。
构造要求
螺栓的边距和中距不宜太大,以免板件间贴合不密,潮气侵入腐蚀钢材。
施工要求
为了便于扳手拧紧螺母,螺栓中距应不小于3do;
根据以上要求,GB50017-2017《钢结构设计规范》给定了螺栓的容许间距和相关设计值。
